
一、概述
YSX1油積水信號裝置安裝于油箱底部。當油箱內油混有水并沉積于底部電極裝置時,信號裝置內的集成控制電路能發出報警信號,運行人員可打開電極裝置的Gl/4直嘴旋塞把水放掉。YSX1-1為一路監測配套儀表;YSX1-4為4路監測配套儀表。
二、技術參數
1)、工作電壓:AC220V±10%、50Hz
2)、信號接點:二常開、二常閉;250VAC、28VDC/5A
3)、含儀表一臺,外形尺寸160×80×130 mm;開孔尺寸152×76mm
三、原理與結構
當油箱底部無積水時,電極裝置中的兩個電極處于斷開狀態,使集成電路N的2腳失去觸發信號,3腳無電流輸出,V由于無控制信號而呈截止,直流繼電器J失電,常開觸點沒有閉合,由常閉觸點接通無積水信號回路,發出無積水信號。
當油箱底部有沉積水時,電極裝置中的兩個電極被接通使集成電路N的2腳產生一個觸發信號,N的3腳有電流輸出,使V導通,直流繼電器J得電,常閉觸點斷開,常開觸點閉合,接通積水報警回路,發出積水信號。
YSXl-1油積水信號裝置由電極裝置和集成發信電路兩部分組成。電極由不銹鋼材料精制,防銹性能,導電性能好,發信電子控制線路主要由集成電路組成,靈敏度高,維護方便。
四、儀表盤面和后端接線

五、安裝
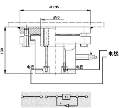
1、電極裝置安裝于油箱底部,開口尺寸φ80,信號裝置安裝在便于觀察使用地方,二者間宜用屏蔽電纜連接并在一點接地。裝于油箱底板的電極裝置有4個電極,可分別并聯使用其中兩個。
2、信號裝置面板裝有一鈕子開關,用于接通或斷開220VAc電源,當須檢查油箱底部有否積水時。可撥動鈕子開關,接通信號裝置電源,看有否積水信號發出。
3、繼電器J接點用于直流電路中控制感性負載JZ時,應負載線圈并聯耗能二極管D。如圖所示:

|